LOCATION KIOSQUE RESTAURANT
Profitez d’une location de kiosque restaurant facile à mettre en place,
pensée pour les professionnels de la restauration.
Vous recherchez une solution flexible, esthétique et rentable pour lancer ou développer votre activité ?
Novakiosk est spécialisé dans la location de kiosques restaurant adaptés à tous les concepts de restauration : snack, street food,
vente à emporter et restauration rapide.
Nos solutions de location de modules de restauration vous permettent de créer rapidement un point de vente performant, sans investissement lourd.
LOCATION KIOSQUE RESTAURANT
Profitez d’une location de kiosque restaurant facile à mettre en place,
pensée pour les professionnels de la restauration.
Vous recherchez une solution flexible, esthétique et rentable pour lancer ou développer votre activité ?
Novakiosk est spécialisé dans la location de kiosques restaurant adaptés à tous les concepts de restauration : snack, street food,
vente à emporter et restauration rapide.
Nos solutions de location de modules de restauration vous permettent de créer rapidement un point de vente performant, sans investissement lourd.
Kiosques restaurants à la location, équipé pour toutes les activités de restauration et traiteur
Vous souhaitez tester votre concept de restauration, travailler pour la saison, ou vous ne voulez pas acheter de kiosque de restauration immédiatement ?
Choisissez notre kiosque snack en location, Novakiosk Location. Pour toutes les activités de restauration annuelles ou saisonnières, temporaires ou définitives.
Le kiosque est livré clé en main et prêt à être raccordé au réseau électrique et eau de ville. Il comprend les équipements essentiels pour démarrer votre activité.
A l’issue de la période initiale de location, vous avez le choix de le restituer ou de continuer la location.
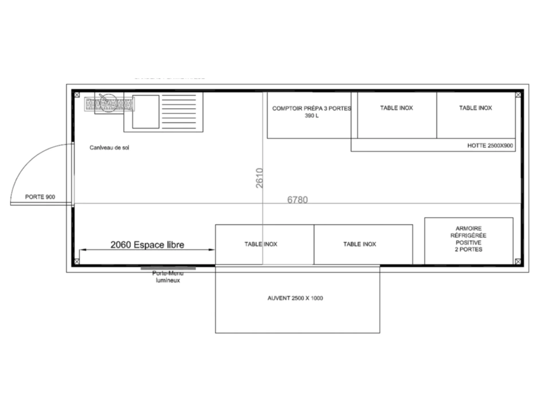
- Equipements froids, préparation et rangements
- Kit hygiène et hotte
- 20m2, peinture blanche
- Personnalisation à la demande
- Livraison partout en France
Options et personnalisation disponibles sur demande – Location à partir de 2 mois minimum

Nos réalisations
Kiosques restaurants à la location, équipé pour toutes les activités de restauration et traiteur !
Vous souhaitez tester votre concept de restauration, travailler pour la saison, ou vous ne voulez pas acheter de kiosque de restauration immédiatement ?
Choisissez notre kiosque snack en location, Novakiosk Location. Pour toutes les activités de restauration annuelles ou saisonnières, temporaires ou définitives.
Le kiosque est livré clé en main et prêt à être raccordé au réseau électrique et eau de ville. Il comprend les équipements essentiels pour démarrer votre activité.
A l’issue de la période initiale de location, vous avez le choix de le restituer ou de continuer la location.
- Equipements froids, préparation et rangements
- Kit hygiène et hotte
- 20m2, peinture blanche
- Personnalisation à la demande
- Livraison partout en France
Options disponibles sur demande – Location à partir de 2 mois minimum
Notre produit
Téléchargez notre plaquette
Retrouvez toutes les informations sur nos kiosques de restauration Novakiosk Location. N’hésitez pas à nous joindre au 09 83 22 43 87 pour plus de détails.
Notre produit
Téléchargez notre plaquette
Retrouvez toutes les informations sur nos kiosques de restauration Novakiosk Location. N’hésitez pas à nous joindre au 09 83 22 43 87 pour plus de détails.




















